扫码到手机上查看
或分享到朋友圈和好友
我校1号楼学生公寓洗衣池更换向社会公开招标。现将相关事项公告如下:
(一)项目概况:校内公寓1号楼
(二)报名须知:参与竞标者
① 需提供公司资质(复印件)、营业执照(复印件)、法人授权委托书
② 需事先到现场察看该工程状况。
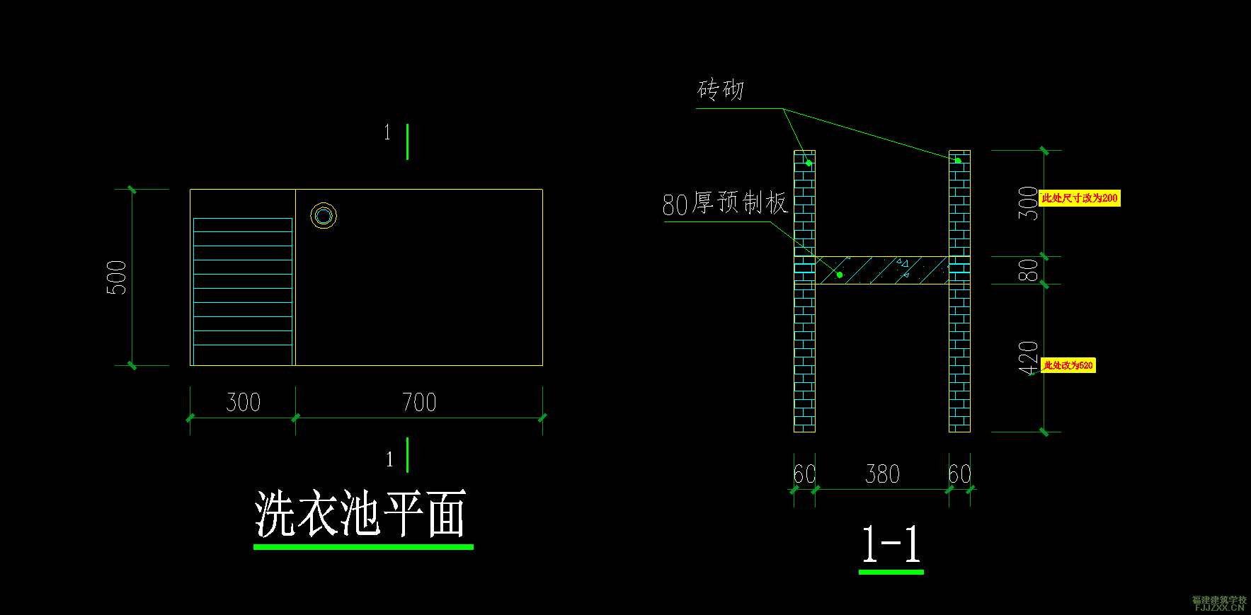
(三)施工内容:拆除原45个旧洗衣池,并将废料清理外运,按图纸装上新洗衣池,要求内外贴砖。
(四)付款法:工程验收合格后,付工程款总额的95%,余款5%作保修金,保修期1年。
(五)投标时间:2017年7月 7 日-2017年7月 14 号上午11:30。。
(六)施工期限:20天
(七)本项目招标控制价不超过48000元,以元为单位。(初步安装45个,具体以实际安装数量结算)
(八)中标方式:最低价中标
(九)联系人:林主任 0591-63331302
(十)报名及投标地点:福州市仓山区洪山桥中店43号校办公室
(十一)咨询人:陈老师:13559198839

福建建筑学校
2017-7-6
扫一扫加入
福建建筑学校微信